Nov 1, 2024
Project Research / Sketching
Looking back at Mid-Century Typologies
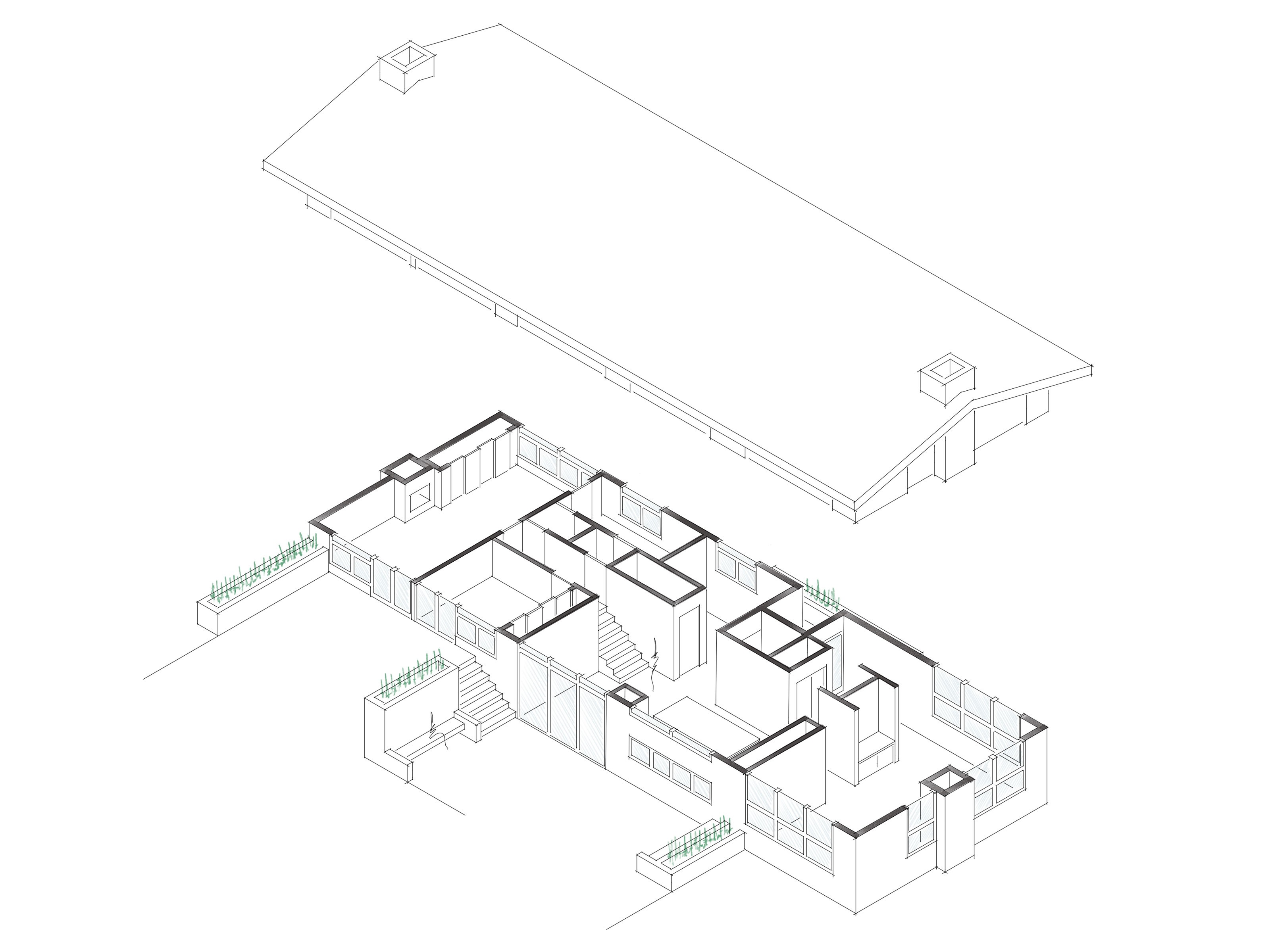
Research is underway for a new residential project we are working on. The Client is looking to incorporate some Mid-Century design typologies into the project and we are sketching up a few ideas. We also found a great resource that was recently published called "The New Modernist House: Mid-Century Homes Renewed for Contemporary Living" by Patricia Callan. It's a great book that highlights projects which update but maintain the original intent and feel of the houses.




